Vente Maison 304m2 BORDEAUX (33000)

$ 0
Ref : 442613W3PARY - Bordeaux (33000)

Ce bien vous intéresse ?

Contactez votre consultant

Arnaud FRAYRET – FRÉDÉRIQUE BOUBY

+ d'infos

Appelez-moi Tous les biens de ce consultant

Visite guidée

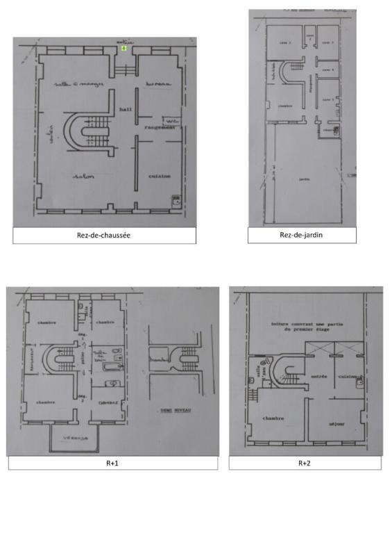
33000 – BORDEAUX – SAINT-SEURIN. IDEAL RESIDENCE PRINCIPALE ou PROFESSION LIBERALE. A quelques pas de la BASILIQUE SAINT-SEURIN et de la PLACE DES MARTYRS DE LA RESISTANCE, à moins de 10 min A PIED du TRIANGLE D’OR, cette superbe MAISON BOURGEOISE de 1880 développe 335 m2 au sol et offre un cadre de vie rare au coeur de l’un des QUARTIERS LES PLUS RECHERCHÉS DE BORDEAUX. Distribuée sur QUATRE NIVEAUX, cette propriété a conservé tout le CHARME DE L’ANCIEN : CHEMINÉES D’ÉPOQUE, MOULURES ÉLÉGANTES, CARREAUX DE CIMENT, PARQUET MASSIF et MAJESTUEUX ESCALIER EN PIERRE, autant d’éléments qui confèrent à cette demeure une authenticité et un cachet remarquable. Le REZ-DE-CHAUSSÉE s’organise autour d’une belle ENTRÉE distribuant un SALON, une SALLE A MANGER, une CUISINE, un BUREAU et un WC indépendant, offrant de beaux VOLUMES DE RÉCEPTION. Au PREMIER ÉTAGE, l’espace nuit propose QUATRE CHAMBRES, une VÉRANDA, une SALLE D’EAU et une SALLE DE BAINS AVEC WC. Le DEUXIÈME ÉTAGE, bénéficiant d’une HAUTEUR SOUS PLAFOND EXCEPTIONNELLE DE 3,20 M, accueille un SALON, une CUISINE, une CHAMBRE et une SALLE D’EAU AVEC WC, permettant d’envisager un ESPACE INDÉPENDANT ou un APPARTEMENT FAMILIAL. Le REZ-DE-JARDIN comprend une CHAMBRE, une SALLE D’EAU AVEC WC ainsi que plusieurs CAVES, idéales pour le STOCKAGE ou l’aménagement d’ESPACES COMPLÉMENTAIRES. A l’arrière, la maison s’ouvre sur une TERRASSE D’ENVIRON 22 M² prolongée par un MAGNIFIQUE JARDIN ARBORÉ de 230 M², un véritable LUXE EN CENTRE-VILLE, PISCINABLE et propice à la création d’un ESPACE EXTÉRIEUR D’EXCEPTION. POSSIBILITÉ D’ACQUÉRIR DEUX PLACES DE STATIONNEMENT A PROXIMITÉ IMMÉDIATE, un ATOUT PRÉCIEUX DANS CE SECTEUR CENTRAL.
Une ADRESSE RARE réunissant VOLUME, CHARME ET POTENTIEL, idéale pour une GRANDE MAISON FAMILIALE ou un PROJET PATRIMONIAL au coeur de BORDEAUX.
PRIX : 1 345 000 euros
DPE : D – GES : D. Montant moyen estimé des dépenses annuelles d’énergie pour un usage standard compris entre 4280 euros et 5830 euros .
Pour visiter et vous accompagner dans votre projet, contactez Arnaud Frayret au 06 37 72 09 46 ou par courriel à a.frayret@paul-parker-properties.com
Selon l’article L.561.5 du Code Monétaire et Financier, pour l’organisation de la visite, la présentation d’une pièce d’identité vous sera demandée.
Cette vente est garantie 12 mois.
Cette présente annonce a été rédigée sous la responsabilité éditoriale de Arnaud Frayret agissant sous le statut d’agent commercial immatriculé au RSAC test auprès de PAUL PARKER PROPERTIES, domicilié 10 rue du Colisée 75008 PARIS, marque de la SAS PROPRIETES PRIVEES, au capital de 40 000 euros, RCS Nantes 487624777, Carte professionnelle Transaction et Gestion immobilière n° CPI 4401 2016 000 010 388 délivrée par la CCI Nantes. Garantie par GALIAN – 89 rue La Boétie, 75008 Paris. – n°28137 J pour 2 000 000 euros pour T et 120 000 euros pour G. Assurance responsabilité civile professionnelle par MMA Entreprise n° de police 120.137.405
Mandat réf : 442613 – Le professionnel garantit et sécurise votre projet immobilier. (3.46 % honoraires TTC à la charge de l’acquéreur.)

Arnaud FRAYRET – FRÉDÉRIQUE BOUBY (EI) Agent Commercial – Numéro RSAC : STRASBOURG 837775543 – .
Les informations sur les risques auxquels ce bien est exposé sont disponibles sur le site Géorisques : www. georisques. gouv. fr

Caractéristiques

Superficie
304 m²
Nbre de pièces
14
Nbre de chambres
6
Prix
$ 0
Ville
Bordeaux (33000)
Réf annonce
442613W3PARY
Nb de salles de bain
1
Grenier
non

Diagnostics

passoireénergétique consommation(énergie primaire) émissions kg CO2/m².an kWh/m².an 180 37* G Logement extrêmement consommateur d’énergie F E D C B A Logement très performant
émissions de CO2très importantes *Dont émissions de gazà effet de serre peu d’émissions de CO2 G F E D 37 kg CO2/m².an C B A

Localisation du bien

Ce bien vous intéresse ?

Contactez votre consultant

Arnaud FRAYRET – FRÉDÉRIQUE BOUBY

Appelez-moi
+ d'infos sur le consultant