Vente Maison 290m2 BORDEAUX (33800)

757 000 
Ref : 420710M3PARY - Bordeaux (33800)

Ce bien vous intéresse ?

Contactez votre consultant

Arnaud FRAYRET – FRÉDÉRIQUE BOUBY

+ d'infos

Appelez-moi Tous les biens de ce consultant

Visite guidée

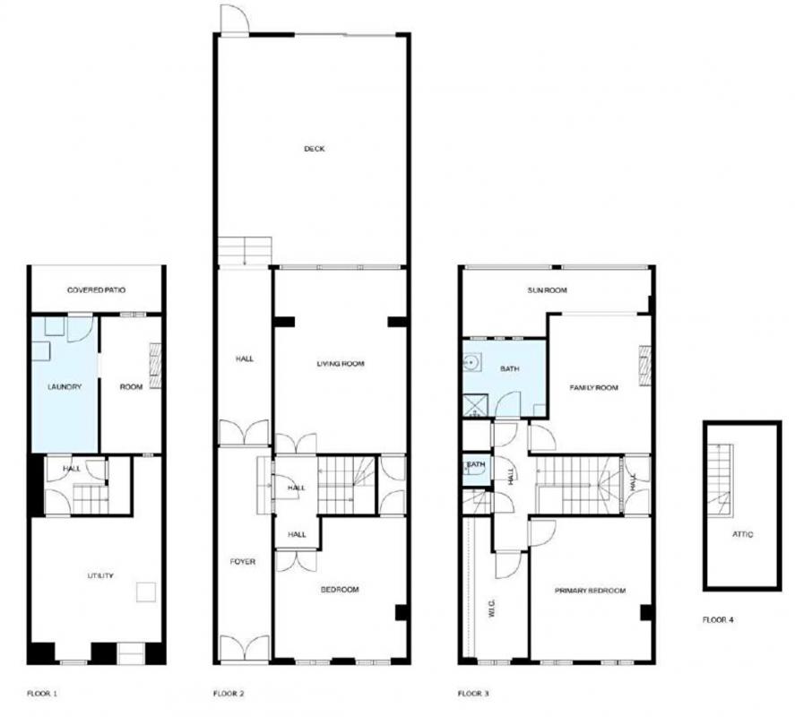
33800 – BORDEAUX – SACRE-COEUR. IDEAL INVESTISSEUR, PROFESSION LIBERALE ou RESIDENCE PRINCIPALE. Situé dans le recherché quartier Sacré-Coeur, entre la PLACE NANSOUTY et de la GARE SAINT-JEAN, cet ensemble immobilier développe 290 m² habitables répartis sur deux maisons distinctes avec TERRASSES, CAVES et GRENIER. La première maison, d’une surface de 142m², séduit par ses prestations anciennes conservées (cheminée, parquet, belle hauteur sous plafond) et offre la possibilité de créer une spacieuse maison familiale de quatre chambres avec salle d’eau et WC. En fond de parcelle, la seconde maison de 148m² propose une vaste pièce de vie avec cuisine aménagée ainsi que deux chambres, une salle de bains, un WC. En complément, vous trouverez une surface extérieure de 88m2 avec terrasses, 30m2 de caves et un grenier aménageable. Des travaux sont à prévoir pour redonner toutes ses lettres de noblesse à cet ensemble immobilier qui présente un fort potentiel tant pour un usage familial que pour un projet mixte (professions libérales, investissement locatif, coliving). Il constitue un TRES BON PLACEMENT PATRIMONIAL. POSSIBILITE de créer des CHAMBRES SUPPLEMENTAIRES. A 5 min A PIED de l’EGLISE SACRE-COEUR et ses commerces de bouche avoisinants. A 10 min A PIED ; de la PLACE NANSOUTY et son esprit village ainsi que du foodcourt de l’ATELIER DES CITERNES et du FUTUR PARC de 1,2ha. Accès facile à la GARE SAINT-JEAN A 10 MIN A PIED. Possibilités de stationnements (locations à proximité).
PRIX : 757 000 euros
DPE : E – GES : E. Montant moyen estimé des dépenses annuelles d’énergie pour un usage standard établi à partir des prix de l’énergie de l’année 2021 : entre 4130 euros et 5650 euros
Pour visiter et vous accompagner dans votre projet, contactez Arnaud Frayret au 06 37 72 09 46 ou par courriel à a.frayret@paul-parker-properties.com
Selon l’article L.561.5 du Code Monétaire et Financier, pour l’organisation de la visite, la présentation d’une pièce d’identité vous sera demandée.
Cette vente est garantie 12 mois.
Cette présente annonce a été rédigée sous la responsabilité éditoriale de Arnaud Frayret agissant sous le statut d’agent commercial immatriculé au RSAC test auprès de PAUL PARKER PROPERTIES, domicilié 10 rue du Colisée 75008 PARIS, marque de la SAS PROPRIETES PRIVEES, au capital de 40 000 euros, RCS Nantes 487624777, Carte professionnelle Transaction et Gestion immobilière n° CPI 4401 2016 000 010 388 délivrée par la CCI Nantes. Garantie par GALIAN – 89 rue La Boétie, 75008 Paris. – n°28137 J pour 2 000 000 euros pour T et 120 000 euros pour G. Assurance responsabilité civile professionnelle par MMA Entreprise n° de police 120.137.405
Mandat réf : 420710 – Le professionnel garantit et sécurise votre projet immobilier. (3.70 % honoraires TTC à la charge de l’acquéreur.)

Arnaud FRAYRET – FRÉDÉRIQUE BOUBY (EI) Agent Commercial – Numéro RSAC : STRASBOURG 837775543 – .
Les informations sur les risques auxquels ce bien est exposé sont disponibles sur le site Géorisques : www. georisques. gouv. fr

Caractéristiques

Superficie
290 m²
Nbre de pièces
9
Prix
757 000 
Ville
Bordeaux (33800)
Réf annonce
420710M3PARY

Diagnostics

passoireénergétique consommation(énergie primaire) émissions kg CO2/m².an kWh/m².an 265 53* G Logement extrêmement consommateur d’énergie F E D C B A Logement très performant
émissions de CO2très importantes *Dont émissions de gazà effet de serre peu d’émissions de CO2 G F E 53 kg CO2/m².an D C B A

Localisation du bien

Ce bien vous intéresse ?

Contactez votre consultant

Arnaud FRAYRET – FRÉDÉRIQUE BOUBY

Appelez-moi
+ d'infos sur le consultant